Obra será realizada com recursos da operação financeira que será somada a uma emenda parlamentar
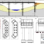
A Câmara de Vereadores de Taió aprovou projeto de lei que autoriza o Município de Taió a contratar financiamento bancário para a construção da ponte sobre o Ribeirão Jundiá. O projeto de lei ordinária (PLO 039/2025) foi aprovado por todos os vereadores nos dois turnos de votações.
O valor autorizado é de R$ 2,8 milhões com o Banco do Brasil. A obra está orçada em quase R$ 4 milhões, o projeto autorizou financiamento com o Banco do Brasil, no valor de R$ 2,8 milhões. Uma emenda parlamentar no valor de R$ 1.118.000,00 do deputado federal Jorge Goetten foi repassada ao Município para somar-se aos recursos para a realização da obra.
A estrutura será construída sobre o Rio Itajaí do Oeste, a ponte ajudará na ligação entre os municípios de Taió e Rio do Oeste. Na justificativa, o Executivo esclareceu que a obra é muito importante para melhorar “o escoamento da produção agrícola, industrial e comercial e fortalecer a competitividade regional”, destaca o documento.
A operação permite o parcelamento do financiamento em até 60 vezes, com 12 meses de carência.




